
干貨 | 這些工法可以參考學習一下!高效施工!發布日期:2019-01-03
土建類
一、戶內門洞優化施工工法
【實施效果】
對小于150mm二次結構門垛、過梁主體施工時一次配模澆筑成型,有效防治門洞側空鼓開裂。
【實施效果】
在二次結構施工時對窗臺梁進行優化設置企口,有效防治窗框周邊滲漏水。
【實施效果】
通過設置通長鋼筋馬凳控制樓板鋼筋保護層厚度減少樓板開裂
【實施效果】
采用定型預制混凝土馬凳起到確保鋼筋保護層厚度及樓板混凝土厚度的雙重作用。
【實施效果】
優化電井布置,確定橋架母線穿板洞口位置和尺寸,電井地面施工時采用PC小構件(可用廉價石材代替)做洞口邊模,地面裝飾收口一次成活。
【實施效果】
屋面結構施工時根據落水口位置、排水方向、排水面積等設置結構防水分區上翻梁,確保各區塊滲漏不擴張,方便后期滲漏水排查修補。
【實施效果】
屋面套管預埋前根據屋面建筑圖紙進行深化碰撞試驗,優化調整通氣管位置,繞開煙帽、排水溝等部位,降低后期防水施工難度改善屋面整體施工觀感質量。
一、戶內門洞優化施工工法
【實施效果】
對小于150mm二次結構門垛、過梁主體施工時一次配模澆筑成型,有效防治門洞側空鼓開裂。
戶內門垛優化示意圖
門垛成型效果
二、窗臺企口澆筑工法【實施效果】
在二次結構施工時對窗臺梁進行優化設置企口,有效防治窗框周邊滲漏水。
窗臺企口澆筑示意圖
現場照片
窗臺企口實景
三、上層鋼筋保護層厚度控制【實施效果】
通過設置通長鋼筋馬凳控制樓板鋼筋保護層厚度減少樓板開裂
鋼筋馬凳
布置示意圖
鋼筋馬凳布置現場實景
四、樓板厚度控制混凝土馬凳【實施效果】
采用定型預制混凝土馬凳起到確保鋼筋保護層厚度及樓板混凝土厚度的雙重作用。
預制塊馬凳布置圖
預制塊馬凳
預制塊馬凳應用
實施效果
五、電井橋架洞PC收口工法【實施效果】
優化電井布置,確定橋架母線穿板洞口位置和尺寸,電井地面施工時采用PC小構件(可用廉價石材代替)做洞口邊模,地面裝飾收口一次成活。
橋架圍擋PC設計圖
PC產品
過程安裝效果
圍擋效果
六、屋面結構防水分區工法【實施效果】
屋面結構施工時根據落水口位置、排水方向、排水面積等設置結構防水分區上翻梁,確保各區塊滲漏不擴張,方便后期滲漏水排查修補。
反坎剖面圖
結構反坎
反坎防水施工
分區蓄水試驗
七、屋面通氣管施工工法【實施效果】
屋面套管預埋前根據屋面建筑圖紙進行深化碰撞試驗,優化調整通氣管位置,繞開煙帽、排水溝等部位,降低后期防水施工難度改善屋面整體施工觀感質量。
優化示意圖
板底做法
【實施效果】
采用PC板替代傳統磚胎模,減少砌體粉刷施工量,提高基礎施工進度及承臺成型尺寸精度。
【實施效果】
優化剪刀樓梯樓梯間梁施工方式,采用PC預制梁代替傳統混凝土現澆做法,降低該部位施工難度提高施工效率,同時更好的控制樓梯間梁成型尺寸的精度。
【實施效果】
根據施工圖識別衛生間降板位置、尺寸大小;采用定型化模具安裝定位加固,使衛生間陰角一次成型,防水施工前減免陰角處理工序。
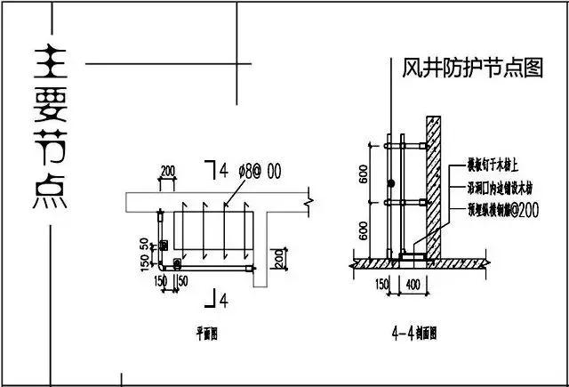
一、風井水平洞口鋼筋網防護施工工藝
【實施效果】
1、不影響后期風井正常使用,鋼筋免切割;
2、防護施工提效,防護安裝難度降低,有效避免風井部位人員墜落。
【工法要點】
提前識別圖紙風井部位,在風井洞口處加設Ф8不大于@200X2000上層鋼筋網。
【實施效果】
1、操作層箍筋使用做到點對點配送,按區備料;
2、采用專用吊籠直接放置到位,提高了吊料的效率;
3、操作層采用分區吊裝配送,數量準確,無余料或補料情況。
【工法要點】
1、根據鋼筋工程施工優化圖,鋼筋配料、送料采用分區劃分管理;
2、各區吊具內,吊裝時實現點對點配送。
【實施效果】
1、減少臨電費用投入;
2、減少后期裝飾施工穿樓板、墻面收口;
【工法要點】
1、主體預埋階段將樓梯道上下開關管線連通;
2、樓梯照明按《電施圖》標準穿線
【實施效果】
三角式操作平臺通過兩根工字鋼斜撐和支角緊貼電梯井內壁和梯井洞口梁,當平臺上增加荷載時形成自錨機制,安全可靠,同時平臺側部通過緊固件可頂住井壁,防止平臺側向傾斜。
屋面預埋效果
頂層通氣管實景
八、基礎承臺PC施工工法【實施效果】
采用PC板替代傳統磚胎模,減少砌體粉刷施工量,提高基礎施工進度及承臺成型尺寸精度。
承臺PC優化圖
承臺PC構件
承臺PC構件拼裝
承臺PC實施效果
九、樓梯間梁PC施工工法【實施效果】
優化剪刀樓梯樓梯間梁施工方式,采用PC預制梁代替傳統混凝土現澆做法,降低該部位施工難度提高施工效率,同時更好的控制樓梯間梁成型尺寸的精度。
樓梯構造窄梁PC優化圖
PC梁
PC梁吊裝
PC梁實施效果
十、衛生間陰角免收口工法【實施效果】
根據施工圖識別衛生間降板位置、尺寸大小;采用定型化模具安裝定位加固,使衛生間陰角一次成型,防水施工前減免陰角處理工序。
衛生間下沉弧形優化做法示意圖
弧形定型化模具
衛生間下沉弧形效果
弧形成型效果
安全類一、風井水平洞口鋼筋網防護施工工藝
【實施效果】
1、不影響后期風井正常使用,鋼筋免切割;
2、防護施工提效,防護安裝難度降低,有效避免風井部位人員墜落。
【工法要點】
提前識別圖紙風井部位,在風井洞口處加設Ф8不大于@200X2000上層鋼筋網。
風井防護節點圖
風井鋼筋留設
風井鋼筋預留成型效果
風井防護安裝成型效果
二、箍筋分區高效吊裝工法【實施效果】
1、操作層箍筋使用做到點對點配送,按區備料;
2、采用專用吊籠直接放置到位,提高了吊料的效率;
3、操作層采用分區吊裝配送,數量準確,無余料或補料情況。
【工法要點】
1、根據鋼筋工程施工優化圖,鋼筋配料、送料采用分區劃分管理;
2、各區吊具內,吊裝時實現點對點配送。
按區分料碼放
按區分料堆放
分區吊裝
按區精準備料
三、樓層臨電照明永臨結合安裝工法【實施效果】
1、減少臨電費用投入;
2、減少后期裝飾施工穿樓板、墻面收口;
【工法要點】
1、主體預埋階段將樓梯道上下開關管線連通;
2、樓梯照明按《電施圖》標準穿線
樓層臨電照明永臨結合具體做法
四、定型化電梯井操作平臺【實施效果】
三角式操作平臺通過兩根工字鋼斜撐和支角緊貼電梯井內壁和梯井洞口梁,當平臺上增加荷載時形成自錨機制,安全可靠,同時平臺側部通過緊固件可頂住井壁,防止平臺側向傾斜。
電梯井操作平臺示意圖
操作平臺全景
平臺設置
操作平臺的實際應用